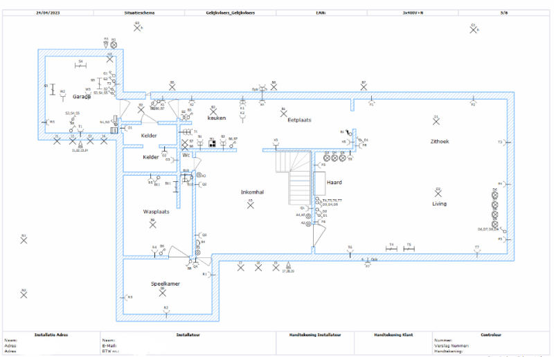
Eendraadschema - Situatieschema

Bij een elektrische keuring dient u de keurder een eendraadschema en situatieschema voor te leggen. Wanneer u geen schema heeft zal de keurder de installatie moeten afkeuren. SJ Consulting BV kan deze schema's voor u opmaken, zo weet u dat u met een correct en net schema de keurder kan laten langskomen.

 

Contacteer ons voor meer informatie.